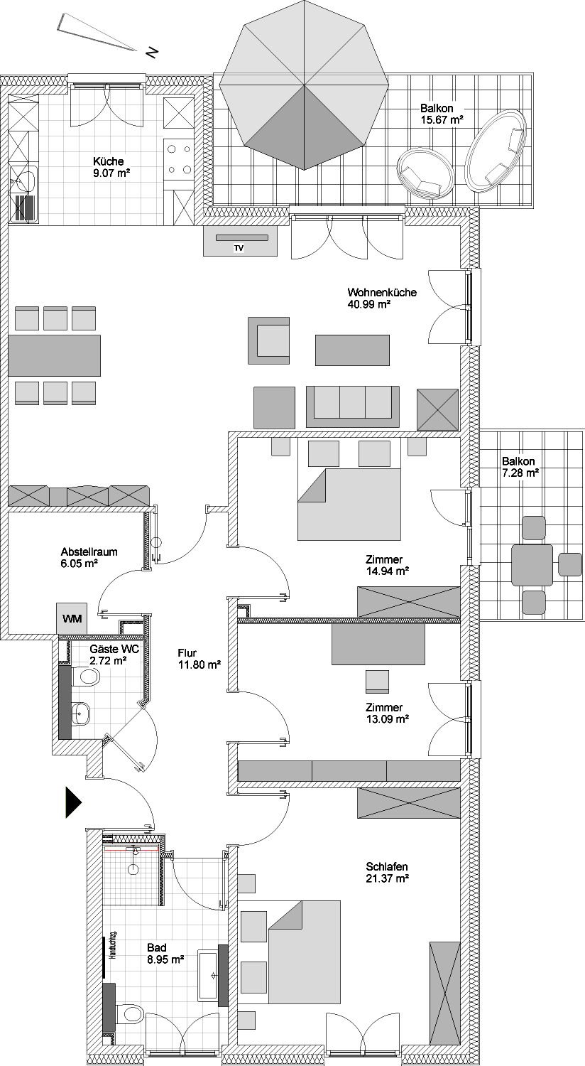
Villa Nr. 9a

Obergeschoss - Wohnung 4

Gesamt 143,54 m²
Flur 11,80 m²
Bad 8,95 m²
Schlafen 21,37 m²
Zimmer 13,09 m²
Zimmer 14,94 m²
Wohnen / Essen 40,99 m²
Küche 9,07 m²
Abstellraum 6,05 m²
Gäste WC 2,72 m²
Balkon 1 7,28 m² / 2= 3,64 m²
Balkon 2 15,67 m² / 2= 7,84 m²

bezugsfertig April 2025

Hochwertige Ausstattung

  • Kaufpreis 3900,- bis 5000,-€/qm je nach Lage & Größe
  • Sonderabschreibung durch Effizienzstandard 55 möglich
    (degressive AfA 6 Jahre 5%)
  • Wohnungen mit 3-5 Zimmer mit hochwertiger Wohnküche
  • Fußbodentiefe Fenster mit Außenjalousie(dreifache Verglasung)
  • Großzügige Raumaufteilung
  • Raumhöhe bis 2,70 m
  • Gäste-WC
  • Stufenloser Zugang zu Treppenhaus, Fahrstuhl, Balkone, Terrassen und Bädern
  • Klingelanlage mit Haustürsprechanlage und Kamera
  • Zentrale Wärmepumpe
  • Fußbodenheizung
  • PKW-Stellplatz
  • Fahrradschuppen
  • Penthouse mit Elbblick

Wir verwenden ausschließlich Cookies, die für die Funktion dieser Website erforderlich sind. Mit der Nutzung unserer Website stimmen Sie der Nutzung von Cookies und unserer Datenschutzbestimmungen zu.

Datenschutzerklärung Impressum
Schliessen
You are using an outdated browser. The website may not be displayed correctly. Close