Villa Nr. 7

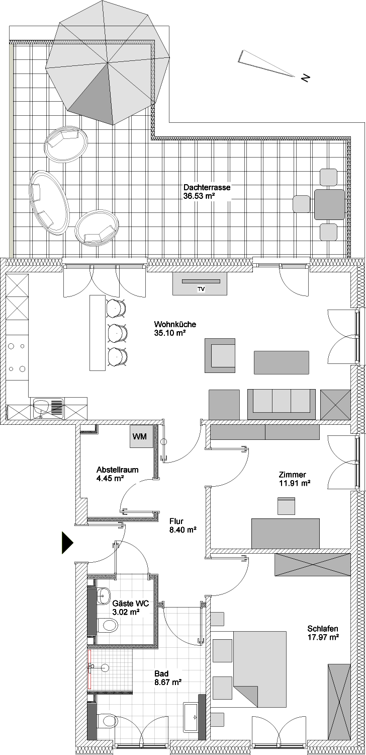
Penthouse - Wohnung 7

Gesamt 107,79 m²
Flur 8,40 m²
Gäste-WC 3,02 m²
Bad 8,67 m²
Schlafen 17,97 m²
Zimmer 11,91 m²
Wohnküche 35,10 m²
Abstellraum 4,45 m²
Dachterrasse 36,53 m² / 2= 18,27 m²

Hochwertige Ausstattung

  • Mietpreis 11,-€  bis 13,-€/qm je nach Lage & Größe
  • Wohnungen mit 3-5 Zimmer mit hochwertiger Wohnküche
  • Fußbodentiefe Fenster mit Außenjalousie(dreifache Verglasung)
  • Großzügige Raumaufteilung
  • Raumhöhe bis 2,70 m
  • Gäste-WC
  • Stufenloser Zugang zu Treppenhaus, Fahrstuhl, Balkone, Terrassen und Bädern
  • Klingelanlage mit Haustürsprechanlage und Kamera
  • Niedrigenergiehaus Kfw 55
  • Zentrale Wärmepumpe
  • Fußbodenheizung
  • PKW-Stellplatz
  • Fahrradschuppen
  • Penthouse mit Elbblick

Wir verwenden ausschließlich Cookies, die für die Funktion dieser Website erforderlich sind. Mit der Nutzung unserer Website stimmen Sie der Nutzung von Cookies und unserer Datenschutzbestimmungen zu.

Datenschutzerklärung Impressum
Schliessen
You are using an outdated browser. The website may not be displayed correctly. Close